Perkins1103/1104柴油發動機曲軸后油封-拆卸
Perkins1103/1104柴油發動機拆卸方法與步驟
a.拆卸飛輪。請參閱本《Perkins1103/1104柴油發動機解體和組裝手冊》,“飛輪-拆卸”。

注:曲軸后油封組件(2)不可維護。如果拆下了曲軸后油封組件(2),必須更換該組件。
1.拆下曲軸后油封組件(2)的調整螺釘(1)。
2.從缸體上拆下曲軸后油封組件(2)。棄置曲軸后油封組件(2)。
Perkins1103/1104柴油發動機曲軸后油封-安裝
Perkins1103/1104柴油發動機曲軸后油封安裝方法與步驟
注:曲軸后部密封件和曲軸后部密封件的殼體是作為一個整體組件制造的。使用十個調整螺釘,以便將曲軸后部密封件組件固定到缸體上。
注: Perkins1103/1104柴油發動機曲軸后部密封件組件在制造期間已經潤滑。在安裝以前,不要潤滑密封件或者曲軸法蘭盤。
注:檢查Perkins1103/1104柴油發動機曲軸后油封,如果油封有一點損壞的跡象,則更換此組件。
注:下列步驟適用于曲軸后油封是替換組件時的情況。

1.確保曲軸法蘭(1)保持清潔、干燥,并遠離粗糙金屬邊緣。確保缸體表面和曲軸箱橋接件清潔、干燥。
2.從新曲軸后油封組件(3)上撕掉包裝材料。一定要將塑料套管(2)端正地安裝在曲軸后部密封(3)組件的密封范圍內。隨附塑料襯套(2)是為了在把油封唇緣推過曲軸法蘭(1)時保護油封唇緣。

3.將曲軸后油封(3)放在曲軸法蘭(1)上方,并將塑料襯套(2)連接到曲軸法蘭上。

4.確保塑料襯套(2)在曲軸法蘭(1)上嚙合。均勻地推動曲軸后部密封(3)組件,并且將其平穩地推到曲軸法蘭盤(1)上,直至組件靠到缸體上。在這個過程中,將迫使塑料套管(2)脫離曲軸后部密封(3)組件。丟掉塑料套管(2)。

5.轉動曲軸后部密封(3)組件,以便將缸體后面板中的調整螺釘孔對準組件中的調整螺釘孔。
6.使用十個調整螺釘(5),將曲軸后部密封(3)組件固定到缸體上,不用擰緊。

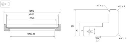
注:Perkins目前沒有提供定位工具(4)。參見圖131中需要的尺寸以現場制作定位工具(4)。
7.將定位工具(4)安裝到曲軸法蘭盤(1)和曲軸后部密封(3)組件的上方,以便將組件對準曲軸法蘭盤。

8.以1、2、3、4、5、6、7、和10的順序,并且以22N·m(16lbft)的扭矩,擰緊調整螺釘(5)。參見圖132。
9.取下定位工具(4)。擰緊調整螺釘8和9至扭矩為22N·m(16lbft)。參見圖132。
a.安裝飛輪殼。請參閱本《Perkins1103/1104柴油發動機解體和組裝手冊》,“飛輪殼-拆卸和安裝”。
b.安裝飛輪。請參閱本《Perkins1103/1104柴油發動機解體和組裝手冊》,“飛輪-安裝”。